top of page
ISON ARCHITECTS
← Project
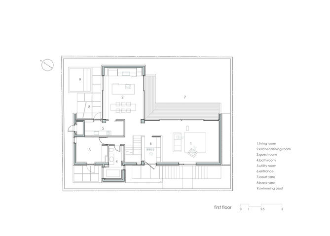
Red House
14' Seoul
-
design team l Lee Byung Chul
location l yeonhui-dong, seodaemun-gu, seoul
type l architecture, new construction
principal use l residential
status l completed
completion date l 2014
total floor area l 328.11 m2
photo l Jongoh Kim
bottom of page